Các mẫu nhà 2 tầng đang là xu hướng thiết kế nhà ở được khá nhiều gia đình yêu thích và lựa chọn hiện nay. Những mẫu nhà 2 tầng thường giúp mang lại không gian sống và sinh hoạt vô cùng thoải mái nhưng vẫn đáp ứng được tính thẩm mỹ cực kỳ cao. Chính vì vậy mà nhu cầu tìm hiểu về những bản vẽ nhà 2 tầng đang ngày càng tăng. Để hiểu rõ hơn về bản vẽ nhà 2 tầng được sử dụng phổ biến nhất hiện nay thì hãy cùng tham khảo bài viết dưới đây của Chất Uy nhé.
Mục lục
I. Bản vẽ thiết kế hoàn chỉnh mẫu nhà ống mặt tiền 4m
Mẫu nhà ống 2 tầng được thiết kế 2 tầng 1 tum và mặt tiền rộng 4m, có sử dụng những hình khối kiến trúc khá đơn giản, vuông vức và chắc chắn, tất cả giúp tạo nên một vẻ đẹp mạnh mẽ cho tổng thể công trình. Mẫu nhà ống 2 tầng này sử dụng màu sơn chủ đạo là màu trắng giúp làm nổi bật vẻ đẹp tinh tế của những hình khối kiến trúc và giúp tạo điểm nhấn cho cả không gian nội thất và ngoại thất của căn nhà. Ở mặt tiền của mẫu nhà ống 2 tầng có sử dụng hệ thống gạch ốp và gạch thông gió giúp làm nên điểm vô cùng nổi bật và ấn tượng cho toàn bộ công trình nhà ở.

Ngoài sử dụng gam màu trắng thì gia chủ còn kết hợp thêm cả màu đen cho một vài chi tiết khác, sự kết hợp này không hề tạo ra sự đối lập hay đồng đều mà nó lại vô cùng hài hòa và tạo được điểm nhấn vô cùng độc đáo trong cách pha trộn màu sắc này.

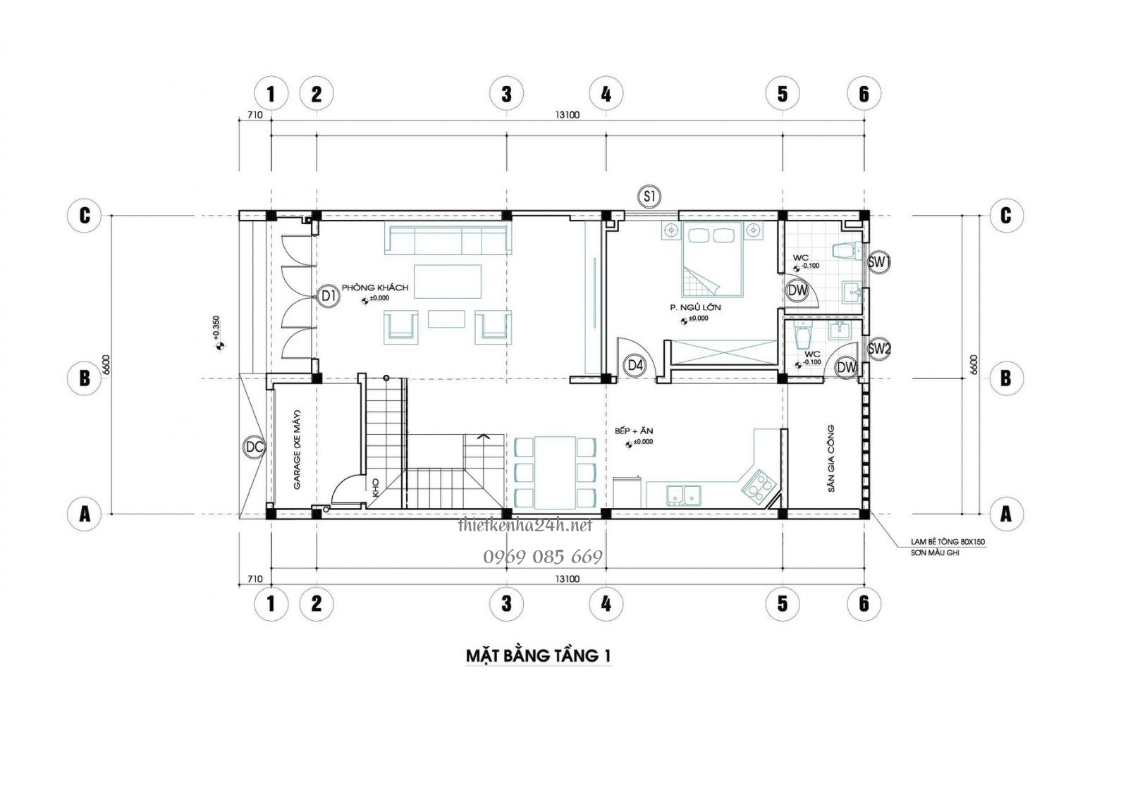
Ở khu vực tầng 1 của mẫu nhà này có thiết kế thêm phần sân trước để trồng vườn hoặc làm khu vực để xe. Tiếp đó là sẽ đến không gian phòng khách vô cùng hiện đại và tiện nghi, chủ đầu tư có sử dụng hệ thống khoảng thông cầu thang bộ để phân chia không gian phòng khách với các khu vực khác ở trong nhà. Ngay bên cạnh chân cầu thang thì có thêm 1 phòng ngủ và 1 phòng vệ sinh có diện tích không quá lớn. Để đảm bảo yếu tố phong thủy cũng như giữ vệ sinh sạch sẽ thì khu vực bếp được thiết kế ở vị trí cuối cùng trong tầng 1 căn nhà.
Tham khảo:
- [Tổng hợp] 50+ bản vẽ thiết kế nhà ống đẹp và chi tiết
- [TOP] Những bản vẽ Mẫu nhà cấp 4 đơn giản đẹp nhất

Ở trên tầng 2 của bản vẽ nhà 2 tầng này thì có thiết kế thêm 2 không gian phòng ngủ nữa để tạo sự thoải mái cho mọi người trong gia đình. Để có thể tiết kiệm diện tích thì chỉ thiết kế thêm 1 nhà vệ sinh ở tầng 2 để dùng chung. Khu vực phòng thờ thường được đặt ở những vị trí hướng ra ban công, và tránh lối đi lại để tạo sự yên tĩnh và thoáng mát cho không gian thờ cúng này.
II. Bản vẽ nhà phố 2 tầng đẹp mặt tiền 7m
Với diện tích mặt tiền khá rộng rãi lên đến 7m nên những bản vẽ nhà 2 tầng này thường được thiết kế khá khoa học, hiện đại và tinh tế, giúp mang lại vẻ đẹp ấn tượng và nổi bật nhất cho công trình xây dựng. Thông thường thì ở những mẫu nhà 2 tầng với mặt tiền 7m thì các kiến trúc sư sẽ sử dụng kết hợp kiểu mái lệch tầng với các khối chéo để tạo nên điểm nhấn cực kỳ nổi bật cho thiết kế mặt tiền.

Đối với những khối trụ bê tông vuông vắn được sử dụng ở mặt tiền tầng 2 thì sẽ được ốp gạch trang trí có màu sắc nổi bật, giúp tạo nên sự hài hòa giữa thiết kế mặt tiền của tầng 1 và tầng 2. Hầu hết mọi người đều bị ấn tượng bởi thiết kế mặt tiền mang vẻ đẹp cực kỳ khỏe khoắn, tươi mới và cân đối với nhau. Chi phí để thực hiện thiết kế nhà ở này cũng không quá lớn và phù hợp với rất nhiều gia đình.

Ở phía trước tầng 1 thì sẽ dành diện tích để thiết kế chỗ để xe và trồng cây xanh cho không gian sống, tiếp đến là không gian phòng khách với diện tích khá thoải mái khi sử dụng cho mọi người. Ở mẫu nhà này thì có sử dụng vách ngăn để ngăn cách không gian phòng khách và phòng bếp nhằm tiết kiệm diện tích cũng như nâng cao tính thẩm mỹ cho không gian nhà ở hơn. Sau nhà bếp thì sẽ thiết kế thêm 1 phòng ngủ với diện tích 16m2 có nhà vệ sinh khép kín để tạo sự riêng tư. Ở vị trí đối diện phòng ngủ sẽ là một nhà vệ sinh chung ở tầng 1 được trang bị đầy đủ các đồ dùng tiện nghi và có diện tích 4.5m2, giúp tạo ra không gian rộng thoáng nhất.

Ở không gian tầng 2 của mẫu nhà 2 tầng mặt tiền 7m thì sẽ có thiết kế một phòng ngủ với diện tích 17m có nhà vệ sinh khép kín và một phòng ngủ có diện tích 12m và không có nhà vệ sinh riêng. Ở giữa hai phòng ngủ thì sẽ có thêm 1 nhà vệ sinh chung để tiện cho việc sinh hoạt của mọi người trong gia đình. Đối với không gian sinh hoạt chung sẽ được bố trí ở gần khu vực đệm của cầu thang.
III. Bản vẽ nhà 2 tầng thiết kế mái thái

Những mẫu nhà 2 tầng có thiết kế phần mái thái thường được xây dựng rất phổ biến hiện nay, nhưng chỉ phù hợp với những khu đất có diện tích rộng. Những mẫu nhà ở này thường được thiết kế rất sang trọng, mang vẻ đẹp hiện đại và vô cùng bề thế, gần với mẫu thiết kế biệt thự hiện đại. Tất cả những chi tiết trong thiết kế nhà 2 tầng mái thái đều rất tinh tế và chỉn chu, mang vẻ đẹp thanh thoát từ kiến trúc hình khối, cảnh quan sân vườn cho đến thiết kế nội thất và ngoại thất của toàn bộ công trình. Chính vì thế mà những mẫu nhà này mang một sức thu hút cực kỳ lớn đối với bất kỳ ai ngay từ cái nhìn đầu tiên.

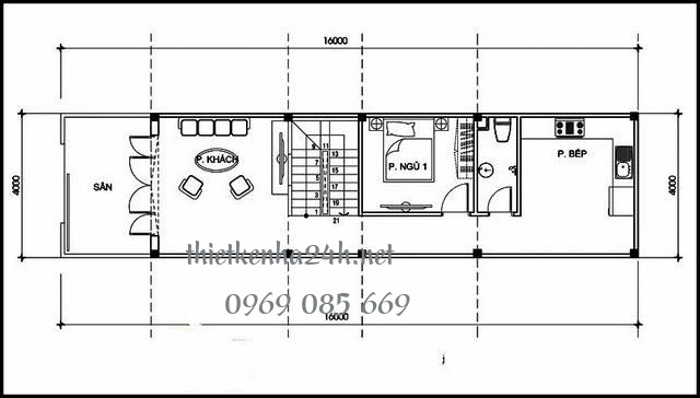
Ở tầng 1 của mẫu nhà này sẽ được thiết kế cả không gian sinh hoạt và không gian nghỉ ngơi chung cho tất cả các thành viên trong gia đình. Điều đặc biệt của mẫu nhà này là phòng khách, phòng bếp và phòng ăn được thiết kế liên thông với nhau và không sử dụng bất kỳ vách ngăn nào cả nên có thể tạo ra một không gian tầng 1 vô cùng thông thoáng và rộng rãi, không có cảm giác bí bách. Ở sau cầu thang thông tầng thì có thiết kế thêm 2 phòng ngủ với diện tích nhỏ và phòng vệ sinh chung ở đối diện để đáp ứng nhu cầu sử dụng của tất cả thành viên trong gia đình.

Đối với không gian tầng 2 thì ở phía bên trai sẽ thiết kế 2 phòng ngủ có diện tích khá lớn để tạo cảm giác thoải mái cho mọi người khi sử dụng. Để tiết kiệm diện tích cũng như chi phí xây dựng thì ở tầng 2 cũng sẽ chỉ thiết kế một nhà vệ sinh chung ở giữa để tiện cho việc sử dụng. Phòng thờ sẽ được đặt ở nơi hướng ra ban công. Bên cạnh đó sẽ còn dành ra không gian riêng để làm nơi sinh hoạt chung cũng như nơi giặt đồ phơi đồ cho mọi người trong nhà.
IV. Bản vẽ 2 tầng nhà biệt thự đẹp

Bản vẽ biệt thự 2 tầng phong cách biệt thự mà các bạn đang chiêm ngưỡng đây được xây dựng trên một mảnh đất có diện tích là 400m2. Do đề nghị cũng như phong cách thiết kế của chủ đầu tư là sự phóng khoáng và hiện đại nên thiết kế cũng khá đặc sắc. Với việc hạn chế những đường phào chỉ rườm rà và chi tiết, chú trọng vào những mảng khối lớn, những hình trơn phẳng. Kết hợp với đó là hệ vách kính, trần ốp giả gỗ. Việc sử dụng vật liệu này không chỉ cho thiết kế trở nên lạ mắt mà còn bật lên sự trẻ trung hiện đại và có pha lẫn thêm phong cách châu Âu hoàn hảo.

Đối với những không gian tách biệt hoàn toàn với gia đình thì sẽ được đặt ở vị trí tầng hầm của ngôi nhà. Thiết kế này còn có đầy đủ gara oto, phòng ngủ cho người giúp việc và phòng ngủ cho khách đến chơi nếu qua đêm lại. Bên cạnh đó, phòng vệ sinh chung cũng được bố trí để dễ dàng cho việc sử dụng của khách.

Tầng 1 có sảnh lớn được thiết kế với những tiểu cảnh đẹp, từ sảnh đến sảnh là phòng khách. Từ hành lang bên phải là phòng ngủ chính, có phòng tắm kín và tủ quần áo. Từ cầu thang bên trái là phòng ngủ của ông bà với thiết kế ấn tượng và phòng thay đồ là phòng ngủ chính. Phía trước có một nhà bếp hiện đại với cửa trước bằng kính, với một phòng tắm nhỏ được thiết kế cho nhu cầu chung ở tầng một.
Tầng 2 của bản vẽ thiết kế nhà 2 tầng hoàn thiện thiết kế biệt thự 2 phòng ngủ rộng 16m, cả hai phòng ngủ đều có phòng tắm kín, có tủ quần áo. Phía trước phòng ngủ là sảnh nhà thờ được thiết kế trong hành lang rộng và thoáng mát ở phía sau, giúp chủ nhà chuẩn bị tốt hơn cho không gian linh thiêng.

V. Bản vẽ thiết kế nhà 2 tầng 3 phòng ngủ hoàn chỉnh
Mẫu thiết kế nhà ống 2 tầng 3 phòng ngủ này có hình khối đơn giản với màu trắng sáng tinh khiết và nhẹ nhàng. Khối cổng đổ khối bê tông và chạy trên tầng 2 để làm cho ngôi nhà cân bằng và mạnh mẽ hơn.

Tầng đầu tiên là nhà để xe máy có tổ chức, phòng khách, bếp, 1 phòng tắm chung và 1 phòng ngủ lớn với thiết kế phòng tắm kèm theo.



Bản vẽ thiết kế của ngôi nhà 2 tầng trên tầng 2 với 2 phòng ngủ và 1 phòng tắm chung. Có một bản vẽ của một hội trường nhà thờ nhìn ra ban công. Đồng thời, nó tạo ra một phòng chung và một phòng làm việc riêng cho chủ sở hữu. Mô hình nhà 3 phòng ngủ này được tổ chức một cách rất khoa học, tối ưu hóa hoàn toàn việc sử dụng nó.
Thiết kế nhà ống này khá đơn giản về hình khối, thêm vào đó là màu trắng tinh khiết của ngoại thất tạo nên một vẻ đẹp nhẹ nhàng và vô cùng thanh lịch.
VI. Bản vẽ nhà ống 2 tầng 3 phòng ngủ 54m2
Ngôi nhà có 2 tầng 3 phòng ngủ, diện tích 54m2 được thiết kế dành cho các gia đình có 3 thế hệ cha mẹ, vợ chồng và 2 con. Thiết kế nhà hình ống 2 tầng 3 tầng có diện tích xây dựng 54m2, với ngân sách ước tính từ 650 đến 700 triệu đồng, thiết kế nhà hình ống 2 tầng có mái tôn, đây là lựa chọn lý tưởng cho nhiều gia đình hiện nay.

Tầng đầu tiên của dự án nhà 2 tầng 2 tầng này bao gồm phòng khách, phòng ngủ và nhà bếp và phòng tắm chung ở phía sau nhà. Phía trước kiến trúc sư có một hiên rộng 2,5 m2 để xe máy và một góc nhỏ để thiết kế cảnh quan. Khu vườn phía trước được tổ chức như một khu vực sấy khô. Tiếp theo là phòng 12m2.

Mặt bằng tầng hai của một ngôi nhà 2 phòng ngủ với 3 phòng ngủ và 54m2. Chức năng sử dụng tầng trệt 2 trong đó có 1 phòng thờ kết hợp với phòng đọc sách. Đằng sau cầu thang, có 2 phòng ngủ cho chồng và con, 2 phòng ngủ này có chung một phòng tắm.
VII. Bản vẽ thiết kế nhà 2 tầng 5×20
Với chiều sâu của quỹ đất là 20m và mặt tiền là 5m. Đây cũng được xem là một nhược điểm về quỹ đất. Tuy nhiên, KTS đã vô cùng tinh tế và khéo léo trong việc bố trí. Sử dụng 3m chiều dài để bố trí một khoảng sân phía trước tạo sự thoáng mát. Bên cạnh đó là 2 tiểu cảnh nhỏ xinh ở phía 2 bên, điều này giúp cho mặt tiền nhà vô cùng thu hút.

Bên cạnh khoảng sân 5m là khu vực được bố trí để xe. Không gian chính đầu tiên ngay khi bước vào là phòng khách của ngôi nhà. Phòng khách được ngăn cách với khu vực gara bằng hệ thống cửa mở trượt. Với chất lượng cửa cao cấp, mùi xăng xe hay các mùi khó chịu khác không vào được nhà. Tuy nhiên thì nó vẫn đảm bảo được ánh sáng chiếu vào bên trong của nhà.
Không gian tầng 1 bao gồm các chức năng: sân, gara, phòng khách, bếp, phòng tắm chung, sân trong kết hợp với hệ thống giếng trời.
Tầng 2 của thiết kế nhà 5x20m được thiết kế dành riêng cho không gian sống và nghỉ ngơi của các thành viên. Phòng ngủ chính được thiết kế rộng 25m, có phòng tắm khép kín với nội thất cao cấp và chất lượng cao như labo, vòi hoa sen … Từ phòng ngủ chính có lối ra ban công trên tầng 2 để tham quan thành phố và thoáng mát đến phòng ngủ.
Như vậy, trong bài viết trên chúng tôi đã cung cấp đến các bạn những thông tin bổ ích liên quan đến những bản vẽ nhà 2 tầng được sử dụng phổ biến nhất hiện nay. Hy vọng sau khi tham khảo bài viết trên các bạn sẽ có thêm nhiều kinh nghiệm về thiết kế mẫu nhà 2 tầng, giúp mang đến không gian sống thoải mái nhất.
Đọc thêm: